One Villa, Three Ways

Choose Your Configuration

Crown of Caribbean is a single private hilltop estate available in three flexible configurations to suit your group size and style

Romantic Guest House w Heated Spa

1 Bed
1 Bathroom
3 Persons

Reservation requires a minimum stay of 2 nights and a maximum stay of 20 nights

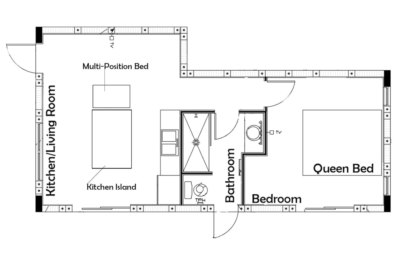
Escape to a romantic Fort Lauderdale retreat for 2! This private 600 sq ft guest house offers a luxury sanctuary with a full kitchen & modern bath. Enjoy access to incredible shared amenities including a pool, spa, and outdoor kitchen. Perfect for couples seeking a serene getaway just minutes from the beach and Las Olas Blvd. On-site parking included. Discover your serene and romantic Fort Lauderdale retreat, a newly constructed 600 sq ft guest house perfect for couples. This private sanctuary is tucked away on our property, offering a blend of luxury and relaxation. **Indoor Living Space:** * **Living Area:** A welcoming, coastal-inspired space with comfortable seating and a wall-mounted HDTV. * **Full Kitchen:** Modern and fully equipped with a stove, microwave, refrigerator, coffee maker, and a Ninja Air Fryer. The pantry is stocked with spices and herbs for your culinary needs. * **Bedroom:** A tranquil retreat featuring a sumptuous Queen-sized bed, ample dresser space, and its own HDTV. * **Bathroom:** An oasis with a modern, curb-less walk-in shower, heated towel warmers, and complimentary shampoo, conditioner, and body wash. * **Climate Control:** You have full control over the apartment's mini-split air conditioning for personalized comfort. **Shared Outdoor Paradise:** Please note these wonderful outdoor amenities are shared with the residents of the main house. * **Heated Spa & Pool:** Unwind in the bubbling hot tub or take a refreshing dip in the inviting pool. * **Secluded Patio & Outdoor Kitchen:** Enjoy your morning coffee or an evening meal in a tranquil outdoor setting with a fully equipped kitchen. * **Leisure & Relaxation:** Challenge a friend on the basketball court, enjoy outdoor games, or simply sway in the hammock. Guests will have exclusive and private access to the entire 600 sq ft guest house. Your stay also includes full access to the shared outdoor amenities on the property, including: * Pool * Hot Tub / Spa * Patio * Outdoor Kitchen * Basketball Court Check-in is simple and convenient with our self-check-in process. Complimentary on-site parking is also provided for your vehicle. This guest house is located on the same property as our main home, where our family resides. We value your privacy and will give you your space, but we are available should you need anything or have any questions during your stay. Nestled in a serene equestrian community with mature tree-lined streets, our home offers a tranquil retreat in a quiet neighborhood setting. With one bedrooms and one bathroom, it's the perfect escape for families or friends seeking relaxation and comfort. Nearby attractions: 1. Flamingo Gardens: Immerse yourself in the beauty of nature at Flamingo Gardens, where you can explore lush gardens, encounter native wildlife, and learn about conservation efforts. 2. Sawgrass Mills: Shop 'til you drop at Sawgrass Mills, one of the largest outlet malls in the country, offering a wide range of stores, dining options, and entertainment venues. 3. Markham Park: Enjoy outdoor recreation at Markham Park, featuring hiking trails, picnic areas, fishing lakes, and a dog park, perfect for a day of family fun. 4. Seminole Hard Rock Hotel & Casino: Test your luck at the Seminole Hard Rock Hotel & Casino, where you can play casino games, dine at world-class restaurants, and enjoy live entertainment. 5. Volunteer Park: Relax in the peaceful surroundings of Volunteer Park, which offers sports fields, playgrounds, and walking trails for outdoor enjoyment. 6. BB&T Center: Catch a live concert or sporting event at the BB&T Center, a premier entertainment venue located just a short drive away. 7. Sawgrass Recreation Park: Experience the thrill of an airboat ride through the Florida Everglades at Sawgrass Recreation Park, where you can encounter wildlife and learn about the unique ecosystem of the region. Whether you're seeking outdoor adventure, shopping excursions, or cultural experiences, Fort Lauderdale offers something for everyone to enjoy. We hope you have a wonderful time exploring the nearby attractions during your stay at our peaceful retreat Uber or Lyft are great ways to get around the area. Parking is easy and free in most places. * **Shared Property:** Please be aware that this guest house is on the same property as our main home. The pool, hot tub, and all outdoor areas are shared spaces with our family. We make every effort to provide guests with privacy. * **Outdoor Space Condition:** As with any outdoor setting, conditions are subject to weather and the natural environment. If you require the outdoor space to be specially detailed and prepared immediately prior to your arrival, please notify us at least 72 hours in advance. A $500 service fee will apply for this request. * **Safety Features:** For your safety, the guest house is equipped with a smoke alarm, carbon monoxide alarm, fire extinguisher, and a first aid kit.

House Rules

Check in Timings: 3 PM – 12 AM

Check Out Timings: 11 AM

Cancellation Policy

100% refund up to 14 days before arrival; 50% refund up to 7 days before arrival

Amenities

  • Internet
  • Wireless
  • Air conditioning
  • Swimming pool
  • Kitchen
  • Hair Dryer
  • Heating
  • Smoke detector
  • Carbon Monoxide Detector
  • First aid kit
  • Fire Extinguisher
  • Essentials
  • Shampoo
  • Hangers
  • Iron
  • Laptop Friendly workspace
  • TV
  • Sound system
  • Street parking
  • Free parking
  • Balcony
  • Linens
  • Outdoor grill
  • Microwave
  • Coffee/tea maker
  • Baby crib
  • Stove
  • Refrigerator
  • Garden or backyard
  • Kitchen utensils
  • Single level home
  • Hot water
  • Private entrance
  • Extra pillows and blankets
  • Cooking basics
  • Electric vehicle charger
  • Beach essentials
  • Room darkening shades
  • Laundromat
  • Jacuzzi
  • Changing table
  • Pack n play travel crib
  • Luggage dropoff allowed
  • Cleaning before checkout
  • Dining table
  • Outdoor furniture
  • Fire pit
  • Cleaning products
  • Body soap
  • Conditioner
  • Shower gel
  • Clothing storage
  • Drying rack for clothing
  • Board games
  • Ceiling fan
  • Barbeque utensils
  • Coffee
  • Freezer
  • Wine glasses
  • Hammock

Check Availability

March 2026
Sun
Mon
Tue
Wed
Thu
Fri
Sat
1
$ 185
2
$ 183
3
$ 186
4
$ 151
5
$ 171
6
$ 208
7
$ 214
8
$ 192
9
$ 188
10
$ 198
11
$ 194
12
$ 207
13
$ 175
14
$ 175
15
$ 236
16
$ 236
17
$ 204
18
$ 183
19
$ 198
20
$ 234
21
$ 232
22
$ 199
23
$ 159
24
$ 169
25
$ 168
26
$ 206
27
$ 229
28
$ 244
29
$ 196
30
$ 194
31
$ 168
April 2026
Sun
Mon
Tue
Wed
Thu
Fri
Sat
1
$ 177
2
$ 181
3
$ 204
4
$ 204
5
$ 186
6
$ 138
7
$ 147
8
$ 151
9
$ 159
10
$ 172
11
$ 177
12
$ 147
13
$ 125
14
$ 127
15
$ 140
16
$ 142
17
$ 159
18
$ 151
19
$ 150
20
$ 152
21
$ 137
22
$ 134
23
$ 137
24
$ 148
25
$ 151
26
$ 153
27
$ 137
28
$ 137
29
$ 150
30
$ 166
May 2026
Sun
Mon
Tue
Wed
Thu
Fri
Sat
1
$ 172
2
$ 165
3
$ 165
4
$ 127
5
$ 127
6
$ 136
7
$ 132
8
$ 156
9
$ 146
10
$ 129
11
$ 125
12
$ 127
13
$ 142
14
$ 152
15
$ 177
16
$ 158
17
$ 158
18
$ 154
19
$ 136
20
$ 170
21
$ 177
22
$ 207
23
$ 212
24
$ 213
25
$ 164
26
$ 165
27
$ 164
28
$ 157
29
$ 177
30
$ 182
31
$ 180
June 2026
Sun
Mon
Tue
Wed
Thu
Fri
Sat
1
$ 156
2
$ 155
3
$ 170
4
$ 162
5
$ 157
6
$ 166
7
$ 150
8
$ 148
9
$ 151
10
$ 163
11
$ 166
12
$ 180
13
$ 188
14
$ 398
15
$ 399
16
$ 400
17
$ 401
18
$ 402
19
$ 403
20
$ 404
21
$ 405
22
$ 406
23
$ 402
24
$ 403
25
$ 404
26
$ 405
27
$ 406
28
$ 407
29
$ 465
30
$ 466
July 2026
Sun
Mon
Tue
Wed
Thu
Fri
Sat
1
$ 467
2
$ 468
3
$ 469
4
$ 471
5
$ 569
6
$ 570
7
$ 572
8
$ 573
9
$ 574
10
$ 576
11
$ 576
12
$ 576
13
$ 644
14
$ 644
15
$ 644
16
$ 644
17
$ 644
18
$ 644
19
$ 644
20
$ 176
21
$ 175
22
$ 179
23
$ 184
24
$ 187
25
$ 172
26
$ 174
27
$ 168
28
$ 167
29
$ 168
30
$ 174
31
$ 175
August 2026
Sun
Mon
Tue
Wed
Thu
Fri
Sat
1
$ 162
2
$ 164
3
$ 163
4
$ 163
5
$ 162
6
$ 170
7
$ 170
8
$ 160
9
$ 156
10
$ 155
11
$ 163
12
$ 155
13
$ 170
14
$ 176
15
$ 167
16
$ 162
17
$ 157
18
$ 162
19
$ 154
20
$ 169
21
$ 197
22
$ 195
23
$ 179
24
$ 185
25
$ 167
26
$ 171
27
$ 179
28
$ 194
29
$ 190
30
$ 184
31
$ 185
September 2026
Sun
Mon
Tue
Wed
Thu
Fri
Sat
1
$ 180
2
$ 180
3
$ 184
4
$ 183
5
$ 186
6
$ 181
7
$ 166
8
$ 163
9
$ 171
10
$ 189
11
$ 189
12
$ 185
13
$ 191
14
$ 182
15
$ 165
16
$ 184
17
$ 196
18
$ 203
19
$ 202
20
$ 206
21
$ 195
22
$ 177
23
$ 196
24
$ 210
25
$ 223
26
$ 219
27
$ 199
28
$ 213
29
$ 213
30
$ 218
October 2026
Sun
Mon
Tue
Wed
Thu
Fri
Sat
1
$ 193
2
$ 204
3
$ 200
4
$ 194
5
$ 184
6
$ 182
7
$ 203
8
$ 202
9
$ 217
10
$ 214
11
$ 214
12
$ 178
13
$ 176
14
$ 180
15
$ 191
16
$ 194
17
$ 190
18
$ 198
19
$ 184
20
$ 175
21
$ 177
22
$ 184
23
$ 188
24
$ 183
25
$ 190
26
$ 181
27
$ 181
28
$ 168
29
$ 184
30
$ 189
31
$ 192
November 2026
Sun
Mon
Tue
Wed
Thu
Fri
Sat
1
$ 193
2
$ 184
3
$ 183
4
$ 183
5
$ 171
6
$ 202
7
$ 194
8
$ 173
9
$ 159
10
$ 187
11
$ 186
12
$ 192
13
$ 192
14
$ 193
15
$ 182
16
$ 176
17
$ 164
18
$ 184
19
$ 207
20
$ 228
21
$ 211
22
$ 200
23
$ 178
24
$ 196
25
$ 241
26
$ 242
27
$ 246
28
$ 241
29
$ 199
30
$ 190
December 2026
Sun
Mon
Tue
Wed
Thu
Fri
Sat
1
$ 190
2
$ 200
3
$ 207
4
$ 235
5
$ 211
6
$ 203
7
$ 176
8
$ 183
9
$ 178
10
$ 205
11
$ 223
12
$ 219
13
$ 209
14
$ 215
15
$ 220
16
$ 203
17
$ 230
18
$ 245
19
$ 244
20
$ 238
21
$ 241
22
$ 241
23
$ 289
24
$ 291
25
$ 313
26
$ 307
27
$ 300
28
$ 300
29
$ 301
30
$ 358
31
$ 358
January 2027
Sun
Mon
Tue
Wed
Thu
Fri
Sat
1
$ 358
2
$ 358
3
$ 240
4
$ 214
5
$ 221
6
$ 223
7
$ 222
8
$ 226
9
$ 222
10
$ 207
11
$ 199
12
$ 193
13
$ 195
14
$ 204
15
$ 248
16
$ 249
17
$ 249
18
$ 198
19
$ 198
20
$ 195
21
$ 212
22
$ 235
23
$ 245
24
$ 221
25
$ 216
26
$ 213
27
$ 215
28
$ 220
29
$ 246
30
$ 250
31
$ 227
February 2027
Sun
Mon
Tue
Wed
Thu
Fri
Sat
1
$ 252
2
$ 243
3
$ 265
4
$ 277
5
$ 314
6
$ 315
7
$ 284
8
$ 271
9
$ 259
10
$ 281
11
$ 293
12
$ 377
13
$ 378
14
$ 379
15
$ 285
16
$ 286
17
$ 287
18
$ 322
19
$ 345
20
$ 351
21
$ 303
22
$ 282
23
$ 286
24
$ 288
25
$ 313
26
$ 284
27
$ 271
28
$ 225
March 2027
Sun
Mon
Tue
Wed
Thu
Fri
Sat
1
$ 209
2
$ 199
3
$ 213
4
$ 230
5
$ 257
6
$ 250
7
$ 212
8
$ 187
9
$ 188
10
$ 200
11
$ 218
12
$ 247
13
$ 248
14
$ 217
15
$ 177
16
$ 264
17
$ 264
18
$ 264
19
$ 246
20
$ 254
21
$ 211
22
$ 167
23
$ 175
24
$ 184
25
$ 209
26
$ 235
27
$ 242
28
$ 235
29
$ 160
30
$ 167
31
$ 172

Customer Reviews

Ta-Shun
January 6, 2026

Friendly hosts and beautiful place to stay. It was nice to be away from all the hoopla of Miami and relax for a weekend.

Debbie
January 6, 2026

Lovely place to stay. Pool and garden was great and very private. The Airbnb was large and comfortable and had everything you needed for your stay. Location was quiet and safe. Would highly recommend.

January 6, 2026

Loved the space. It almost felt like we weren’t in Florida. The outdoor space is gorgeous , there were so many fruit trees! Inside had just enough space for us, and there were so many little things that made it obvious that a lot of thought was put into the space. The pool looked great too, wish we had a chance to take a dip. Marsha was friendly and very responsive. Enjoyed every minute of our time there. Thank you for helping us create amazing memories!

January 6, 2026

A quiet oasis set in a lush landscaped yard with a pool and spa. Had everything we needed and the heated towel rack was an added bonus as well as the outdoor kitchen! Clean and comfortable, perfect for what we needed.

January 6, 2026

Beautiful! Would definitely stay again. The bed was comfortable, the space was lovely and the hot tub on site was just what we needed for a relaxing winter getaway. Marsha made us feel right at home.

January 6, 2026

This home was peaceful, updated, cute - looks exactly like the photos. We loved the spa and pool area. It was centrally located for the things we wanted to do. I’d highly recommend it.

January 6, 2026

Nice guest house and great pool and hot tub

January 6, 2026

Beautiful tropical paradise. The backyard is wonderful with all sorts of interesting plants from all over the world. It’s worth the walk through. Luxurious shower in the guest house. The bed is very comfortable. The hosts go to great lengths to make the backyard and guest house feel private during your stay. It was like this was our backyard. So many cool places to relax outside. All around excellent!

January 6, 2026

A beautiful property with wonderful hosts! I highly recommend and will stay again if returning to the area.

January 6, 2026

We thoroughly enjoyed our stay at Marsha's place. The hot tub was so nice! We used it every night of our stay. We tried the pool, but it was a little cold for us in February. The bed was comfortable and having separate AC units in the bedroom and kitchen space was wonderful. The only negatives we have for the entire space are that the pool floor was dirty and there was a cleaning device in it the whole time, the outdoor furniture was a little torn and worn compared to the photos, and the grill was dirty. These didn't really detract from our stay, but they exactly what was depicted. Overall, we would definitely stay again!

January 6, 2026

We loved our stay at your home we had so many plans we didn’t get to use the pool and spa so sad about that but we were comfortable and had everything we needed.. I appreciate everything an I Would love to book again when it gets warmer..Marsha was more than helpful when we needed her.. I would definitely recommend to stay at this beautiful home.

January 6, 2026

Beautiful place to stay and super clean!

January 6, 2026

Alles top! Wir haben uns sehr wohl gefühlt und konnten unsere Zeit sehr geniessen. Die Gastgeber haben sehr auf unsere Privatsphäre geachtet und uns hilfreiche Tipps für den Aufenthalt gegeben. Wir können die Unterkunft sehr empfehlen und würden sie jederzeit wieder buchen.

January 6, 2026

One of the best bnbs I’ve stayed in, and it was an amazing weekend for my girlfriend and I we definitely will be coming back !!

January 6, 2026

Great place, private and peaceful, with good host!

January 6, 2026

Absolutely LOVED our stay! My wife and I stayed here for 9 nights as a getaway / change of scenery. We both worked remote the entire time, internet is great and reliable (~250 Mbps when I tested). Walking right out to the beautiful pool way just a dream come true. Everything is extremely clean and well-kept and we could not have been happier.

January 6, 2026

We enjoyed every minute of our stay. Marsha's instructions were clear and precise. The description matched all that was posted in the photos. The pool and spa is on point with the romantic setting. It certainly sets the mood for good vibes. The outdoor space is peaceful and calming with fresh air from the surrounding nature. Marsha was very responsive and available to all our needs when contacted. We're glad to have chosen our stay at Marsha's oasis. It's quite a comforting and relaxing experience 🙏

January 6, 2026

Had a nice 4 night stay here. Everything was clean and just as pictured. Used the grill outside most nights for dinner so that was a great feature to have. Pool was clean and water temp was nice for cooling off. Hosts were very responsive to any questions we had before and during our stay. Location of the Airbnb was quiet and felt very private.

January 6, 2026

I would definitely recommend it… The host was nice

January 6, 2026

I loved everything about this place … communication 10/10💓

January 6, 2026

We had a last-minute trip to South Florida and were lucky to find this cute retreat. Marsha was very accommodating to our changing needs. The weather didn't dampen our vacation. We were able to still use pool and hot tub. The kitchen and guest house was nicely decorated and the backyard area was private. It was a perfect getaway for a couple and a nice alternative to a hotel.

January 6, 2026

Great place. Enjoyed my 12 day stay

January 6, 2026

Marsha's place was a great stay for my family. Quiet neighborhood felt safe. The pool and patio space was beautiful -our only regret is that we were there for just a few nights and we were only able to use the pool once! Everything was clean and as described. We would definitely return in the future!

January 6, 2026

Un lugar fantástico para pasar unos días de total tranquilidad, lo mejor es la Piscina y el Spa.

January 6, 2026

beautifull, secluded, private guest house, no frantic city stuff yet that is within a 10 minute drive if you are looking g for it. felt right at home, we had a great long weekend !

January 6, 2026

Ich hatte einen großartigen Aufenthalt! Die Unterkunft war perfekt, sehr gut ausgestattet, sauber und komfortabel. Besonders begeistert war ich vom tollen Außenbereich inklusive Pool, der ideal zum Entspannen war. Die Lage war schön ruhig, perfekt zum Abschalten, aber trotzdem gut erreichbar. Auch die Kommunikation mit Marsha lief reibungslos und freundlich. Ich plane schon meinen nächsten Aufenthalt hier.

January 6, 2026

Great escape away from. Pictures did not do this place justice. Beautiful place and a great host! Would definitely come back.

January 6, 2026

Great place

January 6, 2026

The home was cozy and welcoming, and we especially loved the pool, the palm trees, and the warm hospitality. It truly felt like a home away from home and made our first American stay unforgettable.

Vishakha
January 9, 2026

Marsha and Bensin are amazing hosts and their place reflects that. The place is well designed and thoughtful. The neighborhood is quiet and safe away from the hustle bustle of the city. Loved our time there!

Make a Reservation

Scroll to Top